宇都宮市白沢町

販売価格 39,800,000(非課税)
外観
外観
リビング
リビング
リビング・ダイニング
リビング・ダイニング
キッチン
キッチン
1F セカンドルーム
1F セカンドルーム
洗面
洗面
1F ランドリールーム
1F ランドリールーム
浴室
浴室
1F トイレ
1F トイレ
2F 南東洋室
2F 南東洋室
2F 南東洋室 収納
2F 南東洋室 収納
2F トイレ
2F トイレ
眺望
眺望
玄関 内側
玄関 内側
物置
物置
前面道路 南側
前面道路 南側
外観
リビング
リビング・ダイニング
キッチン
1F セカンドルーム
洗面
1F ランドリールーム
浴室
1F トイレ
2F 南東洋室
2F 南東洋室 収納
2F トイレ
眺望
玄関 内側
物置
前面道路 南側
  • ウォークインクローゼット
  • 当社施工
  • 整形地
  • 駐車場3台分以上
  • パントリー
  • 納戸
  • 室内物干し
  • IHクッキングヒーター
  • 玄関収納
  • フルフラット対面キッチン
  • オール電化
■トヨタウッドユーホーム施工の4SLDK こだわりの詰まったオーダーメイド住宅
  • □築1年の築浅美邸、室内外丁寧にお住まいです
  • ■土間収納やパントリー、納戸など収納量豊富な住まい
  • □1階にランドリールームを設け、室内干しも可能です
  • ■ロジアを採用し、急な雨でも安心です
  • □カーポート2台並列駐車可能、最大4台並列駐車可能です
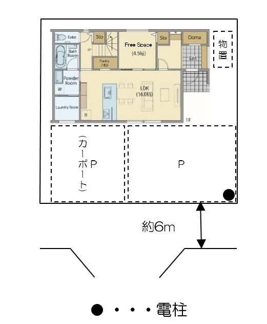
    ■分譲地内の南側6m道路で日照良好

地図・周辺環境

教育
  • 宇都宮市立白沢小学校 約940m
  • 宇都宮市立古里中学校 約1580m
  • 宇都宮市なかよし保育園 約510m
商業施設
  • フードマーケットオータニ宝井店 約1920m
  • ローソン宇都宮白沢町店 約290m
  • ツルハドラッグ宇都宮白沢店 約1210m
病院
  • 慈啓会白澤病院 約700m
公共施設
  • 河内郵便局 約880m

物件概要

物件番号
B-1262
物件名
宇都宮市白沢町
所在地
宇都宮市白沢町
交通
JR宇都宮線『岡本』駅まで徒歩44分(約3.5km)
学区
白沢小学校・古里中学校
用途地域
第二種住居地域
地目
宅地
現況
入居中
駐車場
カーポート2台並列駐車可能、最大4台並列駐車可能です
建ぺい率
60%
容積率
200%
土地面積
181.38m2(54.86坪) 
建物面積
118.41m2(35.81坪) 
構造
木造合金メッキ鋼板ぶき
販売価格
39,800,000円(非課税)
引渡時期
契約後3か月
設備
公営水道・公共下水・オール電化
建築年月
2025年3月
接道
南側 約6m
私道負担
なし
取引態様
専任媒介
間取り
4LDK+S
備考
1.建物施工:トヨタウッドユーホーム株式会社 商品名 :Compus (2×4工法)
2.メーカー保証継承可(保証継承点検が必要です。) 費用:¥22,000-(税込) 買主様負担
情報更新日
2026年4月12日
次回更新予定日
2026年5月12日

ご返済例

  • 販売価格/3,980万円(非課税)
  • 頭金/0万円
  • 借入金額/3,980万円
  • 金利/1.125%(変動)
月々返済 86,444円(元金/0万円) ボーナス払い(年2回)169,754円(元金/0万円)
  • 返済例は当社提携地方銀行ローン、返済期間35年で計算しています。
  • 返済例は概算です。諸条件により内容は異なります。
  • 別途諸経費等が必要になります。
  • 金利は2026年4月11日現在のものです。

お問い合わせ

  • 028-600-4455 スマートフォンではタップで
    発信できます
  • 見学予約 ご見学希望の方は
    事前予約でスムーズにご案内致します
  • 資料請求 物件の詳しい資料を
    お届けします

関連リンク