サーパス不動前

販売価格 18,800,000(非課税)
最上階で眺望・通風ともに良好です
最上階で眺望・通風ともに良好です
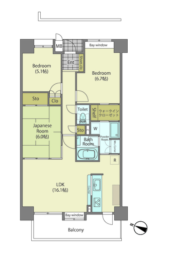
16.1帖の広々としたLDK(クロス貼替)
16.1帖の広々としたLDK(クロス貼替)
LD
LD
リフォームしたシステムキッチン、窓もあり手元まで明るいです
リフォームしたシステムキッチン、窓もあり手元まで明るいです
洗面台もリフォームしました
洗面台もリフォームしました
浴室
浴室
リフォームしたトイレ
リフォームしたトイレ
和室はリビングと隣接して一体感があります(畳の表替えしました)
和室はリビングと隣接して一体感があります(畳の表替えしました)
洋室6.7帖(ウォークインクローゼット付き)
洋室6.7帖(ウォークインクローゼット付き)
洋室5.1帖(クロス貼替)
洋室5.1帖(クロス貼替)
玄関
玄関
バルコニー
バルコニー
高層階からの眺望を堪能して下さい
高層階からの眺望を堪能して下さい
マンション共有部分(風除室)
マンション共有部分(風除室)
メールルーム
メールルーム
エントランス
エントランス
エントランスホール
エントランスホール
最上階で眺望・通風ともに良好です
16.1帖の広々としたLDK(クロス貼替)
LD
リフォームしたシステムキッチン、窓もあり手元まで明るいです
洗面台もリフォームしました
浴室
リフォームしたトイレ
和室はリビングと隣接して一体感があります(畳の表替えしました)
洋室6.7帖(ウォークインクローゼット付き)
洋室5.1帖(クロス貼替)
玄関
バルコニー
高層階からの眺望を堪能して下さい
マンション共有部分(風除室)
メールルーム
エントランス
エントランスホール
  • ウォークインクローゼット
  • TVドアホン
  • 都市ガス
  • シャワートイレ
  • 宅配ボックス
  • 即入居可
  • セミオープン対面キッチン
  • リフォーム済み
  • キッチン窓あり
  • 自走式駐車場
  • 平面駐車場
  • ガスコンロ
  • エアコン
  • オートロック
■室内コンディション良好。2025年10月にリフォーム済。
  • 【リフォーム実施内容】
    キッチン・洗面台・トイレ交換、一部クロス貼替、床クリーニング、畳表替え
  • ■最上階につき、眺望・通風ともに良好です。
  • ■16.1帖の広々LDK。人気のカウンターキッチン採用。
  • ■現在空室の為、即入居可能。内覧も随時受付中です。

地図・周辺環境

教育
  • 宮の原小学校 約1,000m
  • 一条中学校 約1,600m
  • 認定みどりこども園 約400m
商業施設
  • パワーマート新町店 約850m
  • たいらや簗瀬平成通り店 約950m
  • ヨークベニマルミライト一条店 約1,400m
  • ローソン宇都宮不動前店 約260m
  • ツルハドラッグ宇都宮不動前店 約350m
病院
  • うつのみや呼吸器内科クリニック 約1,200m
  • 不動前寄藤歯科医院 約300m
  • 宇都宮記念病院 約2,200m
公共施設
  • 宇都宮市役所 約1,400m

物件概要

物件番号
C-373
物件名
サーパス不動前
所在地
宇都宮市西原町195-39
交通
JR宇都宮線『宇都宮駅』まで徒歩29分(約2.3㎞)
階数
9階/10階建て
学区
宮の原小学校・一条中学校
構造
鉄骨鉄筋コンクリート造陸屋根10階建
専有面積
74.15m2(22.43坪) 
バルコニー面積
10.70m2(3.23坪) 
販売価格
18,800,000円(非課税)
建築年月
1999年7月
取引態様
専任媒介
管理費
月7,100円
修繕積立
月15,600円
駐車場料金
6,000円
※平面駐車場(2年に1度抽選あり)現在空きなし  近隣月極駐車場契約中
現況
空室
引渡時期
即時
管理方式・管理形態
全面委託管理通勤
備考
・登記面積69.01㎡(20.87坪)
・修繕積立金は段階的な値上げの予定あり
・大規模修繕工事実施計画あり(2026年9月予定:現在協議中)
情報更新日
2025年12月5日
次回更新予定日
2026年1月5日

ご返済例

  • 販売価格/1,880万円(非課税)
  • 頭金/0万円
  • 借入金額/1,880万円
  • 金利/1.000%(変動)
月々返済 60,468円(元金/1,880万円) ボーナス払い(年0回)0円(元金/0万円)
  • 返済例は当社提携地方銀行ローン、返済期間30年で計算しています。
  • 返済例は概算です。諸条件により内容は異なります。
  • 別途諸経費等が必要になります。
  • 金利は2025年12月5日現在のものです。

お問い合わせ

  • 028-600-4455 スマートフォンではタップで
    発信できます
  • 見学予約 ご見学希望の方は
    事前予約でスムーズにご案内致します
  • 資料請求 物件の詳しい資料を
    お届けします

関連リンク