小山市駅東通り1丁目 居住用ビル

販売価格 78,000,000(非課税)
外観
外観
玄関(外側)
玄関(外側)
玄関(内側)
玄関(内側)
中庭
中庭
外観
玄関(外側)
玄関(内側)
中庭
  • ウォークインクローゼット
  • 都市ガス
  • シャワートイレ
  • 照明付き
  • 整形地
  • 小学校徒歩10分以内
  • 駐車場3台分以上
  • 納戸
  • 室内物干し
  • 玄関収納
  • ガスコンロ
  • 駅徒歩10分以内
  • エアコン付き
■JR小山駅(新幹線停車駅)より徒歩8分!都内への通勤にも便利な居住用3階建ビル!
  • □駅前1等地で敷地100坪超え!
  • ■周辺環境も充実!スーパーもコンビニも病院も郵便局もALL徒歩圏内!
  • □1階テナント賃貸中(年間賃料306万円)!テナント収益+資産性の高い土地で投資用物件としても大変魅力的!
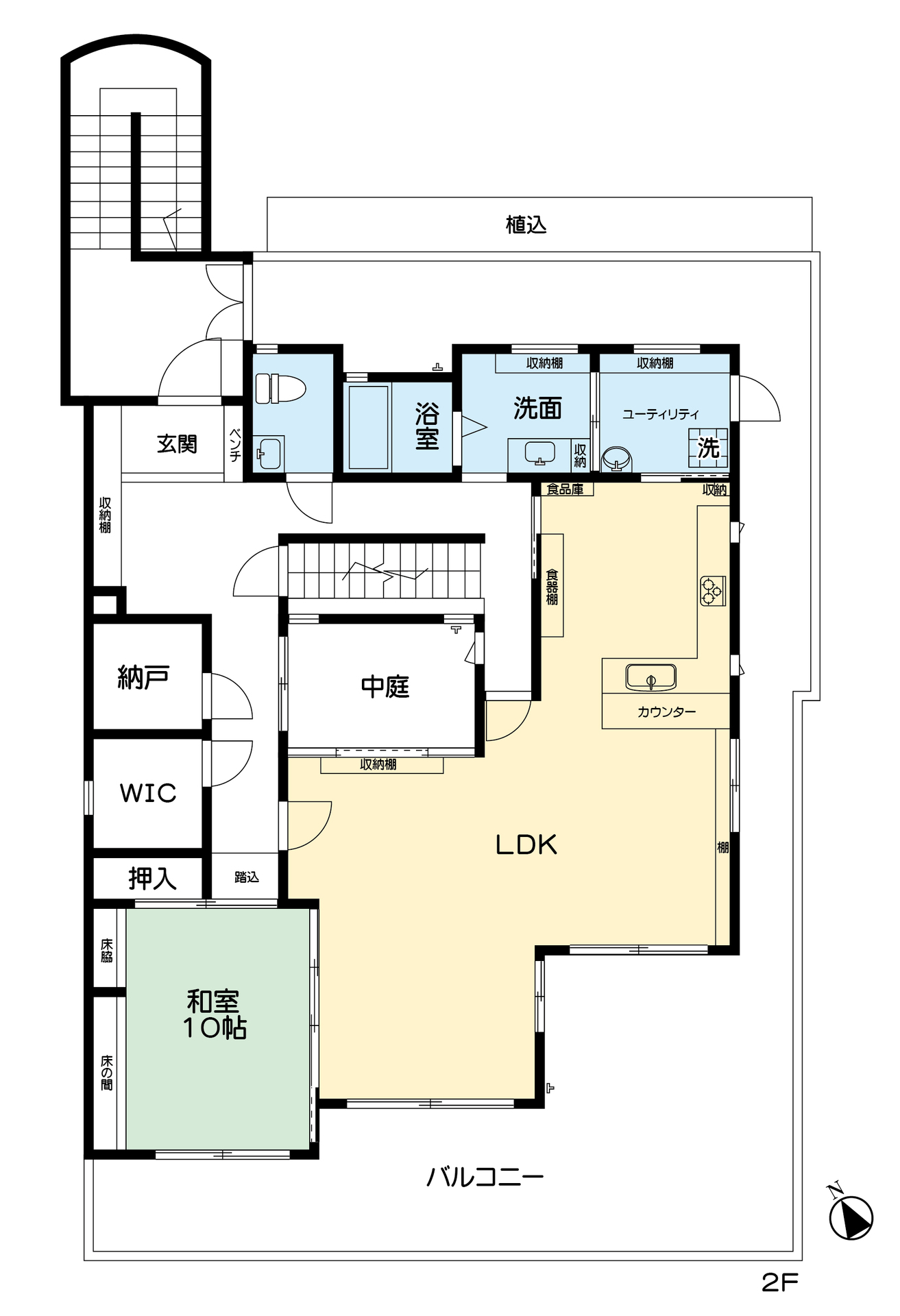
  • ■2階・3階が居住用スペースで間取りはゆとりの6LDK+SS!
  • □ドッグラン可能な広々バルコニー!2階には中庭まで付いてます!

地図・周辺環境

教育
  • 小山市立小山城東小学校 約450m
  • 小山市立小山第三中学校 約2,450m
商業施設
  • ヤオハン城東店 約900m
  • ローソン 小山駅東通り二丁目店 約130m
病院
  • 小山厚生病院 約1,600m
  • トータルクリニック寺門医院 約950m
公共施設
  • 小山市役所 約1,300m
  • 小山郵便局 約400m

物件概要

物件番号
I-130
物件名
小山市駅東通り1丁目 居住用ビル
所在地
駅東通り1丁目
交通
JR宇都宮線『小山駅』まで徒歩8分(約600m)
学区
小山市立小山城東小学校・小山市立小山第三中学校
用途地域
近隣商業地域
地目
宅地
現況
入居中
駐車場
6台 ※うち3台は1階テナントに貸し出し中
建ぺい率
80%
容積率
200%
土地面積
361.00m2(109.20坪) 
建物面積
503.94m2(152.13坪) 
構造
鉄骨造
販売価格
78,000,000円(非課税)
引渡時期
相談
設備
上水道・下水道・都市ガス
建築年月
1997年10月
接道
約6.0m
私道負担
なし
法令上の制限
宅地造成工事規制区域、準防火地域
取引態様
専任媒介
間取り
居住用スペース:6LDK+SS
情報更新日
2026年3月31日
次回更新予定日
2026年5月1日

ご返済例

  • 販売価格/7,800万円(非課税)
  • 頭金/0万円
  • 借入金額/0万円
  • 金利/0.000%(変動)
月々返済 0円(元金/0万円) ボーナス払い(年0回)0円(元金/0万円)
  • 返済例は概算です。諸条件により内容は異なります。
  • 別途諸経費等が必要になります。
  • 金利は2026年3月29日現在のものです。

お問い合わせ

  • 028-600-4455 スマートフォンではタップで
    発信できます
  • 見学予約 ご見学希望の方は
    事前予約でスムーズにご案内致します
  • 資料請求 物件の詳しい資料を
    お届けします

関連リンク