仙台市泉区本田町(泉本田町ガーデンヒルズ E-3)

販売価格 21,905,000(非課税)
泉区市名坂の商業エリアが近く、生活に便利です。
泉区市名坂の商業エリアが近く、生活に便利です。
分譲地の奥側に位置するE街区なので、交通量も少なく安心です。
分譲地の奥側に位置するE街区なので、交通量も少なく安心です。
E街区内ほかのお勧め物件もご紹介可能です。
E街区内ほかのお勧め物件もご紹介可能です。
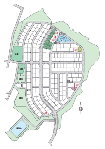
E街区全体写真
E街区全体写真
分譲地販売直後のドローン空撮です。
分譲地販売直後のドローン空撮です。
泉区市名坂の商業エリアが近く、生活に便利です。
分譲地の奥側に位置するE街区なので、交通量も少なく安心です。
E街区内ほかのお勧め物件もご紹介可能です。
E街区全体写真
分譲地販売直後のドローン空撮です。
  • 公共下水
  • 公営水道
  • 角地
  • 建築条件なし
利便性の高い泉中央エリアの街『泉本田町ガーデンヒルズ 区画E-3』。建築条件無し宅地好評分譲中です。
  • 仙台の副都心“泉中央”の利便性を享受する全211区画の大規模分譲地。全区画が50坪以上に統一されており、綺麗な街並みを作っている最中です。公園も新設されており、お子様と楽しく休日を過ごせます。
  • 販売宅地内に集中プロパンガス(都市ガスと同じようにガス管を地中埋設する供給システム)の引込が有ります。ガス会社がボンベを一括管理しているので安全性が高いです。
  • 分譲地の周辺には、スーパー・ドラッグストア・コンビニ・免許センター・ホームセンター・飲食店・家電量販店と周辺施設が盛り沢山。買い物・通勤通学、便利が凝縮された街です。
  • 平地や沿岸部だと浸水地域に該当してしまうエリアが多い仙台市内ですが、本田町は高台に位置する為、洪水への災害への不安が解消されます。七北田川からも距離があり、大雨時も安心です。
  • 分譲地内は約6.0m~12.0m幅の舗装道路に統一されています。(※6.0mは車2台がスムーズにすれ違える幅です)お仕事やお出掛けの際のお車での移動も楽々です。

地図・周辺環境

教育
  • 七北田小学校 約1,340m
  • 七北田中学校 約1,600m
  • 七北田保育所 約1,680m
商業施設
  • ウエルシア仙台市名坂店 約530m
  • ヨークベニマル市名坂店 約1,300m
  • セブンイレブン仙台本田町店 約410m
  • ヤマダデンキ テックランド仙台泉本店 約860m
病院
  • 七北田クリニック 約1,310m
  • 仙台徳洲会病院 約1,330m
公共施設
  • 運転免許センター 約1,400m
  • 泉区役所 約2,400m

物件概要

物件番号
MA-016
物件名
仙台市泉区本田町(泉本田町ガーデンヒルズ E-3)
所在地
仙台市泉区本田町
交通
【車】仙台市営地下鉄南北線「泉中央駅」まで車で約10分【バス】宮城交通バス「仙台白百合女子大学入口」バス停徒歩約6分~7分(約420m~500m)仙台市営地下鉄南北線「泉中央駅」までバス約14分
学区
七北田小学校 七北田中学校
用途地域
第二種中高層住居専用地域
地目
宅地
建ぺい率
60%
容積率
200%
土地面積
170.86m2(51.68坪) 
販売価格
21,905,000円(非課税)
引渡時期
即時
設備
公営水道、公共下水、集中プロパンガス
接道
南側 約6.0m、北西側 約6.0m
私道負担
なし
法令上の制限
景観法、宅地造成工事規制区域、高度地区
取引態様
専任媒介
備考
※住宅建築についてハウスメーカーの指定はございませんが、ご入居後、分譲地内供給のプロパンガス会社と契約しガスを使用して頂くことが販売条件となります。
情報更新日
2025年10月31日
次回更新予定日
2025年12月1日

お問い合わせ

  • 028-600-4455 スマートフォンではタップで
    発信できます
  • 見学予約 ご見学希望の方は
    事前予約でスムーズにご案内致します
  • 資料請求 物件の詳しい資料を
    お届けします

関連リンク