タップすると電話がかかります
エクステリア
販売価格(税込)/3,370.0万円
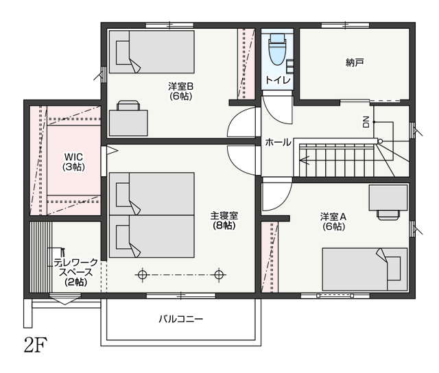
敷地面積/225.43m2(68.19坪)
建物面積/115.34m2(34.82坪)
完成時期(築年月):2025年11月下旬予定
引渡可能時期:2025年12月予定
トヨタホームカンパニー栃木営業所〒320-8541 栃木県宇都宮市一ノ沢町256-7
0120-154-500